Search Icon
Funnel Icon

Fetching results ...

Pen Icon

Search for something ...

Sad Face Icon

No results found, try adjusting your search

skip to GU Secury Automatic TENF Multipoint Door Lock

GU Secury Automatic TENF Multipoint Door Lock

£223.48

(£186.23 ex VAT)

sku: 6-37423-45-0-1
  • Automatic deadbolt activation provides instant security when the door is closed
  • Integrated daytime release function allows for temporary unrestricted passage
  • Compatible with GU Secury Automatic Universal Motor for electronic locking upgrades
  • Features a standard 92mm PZ centre for compatibility with standard lever handles
  • Suits Euro profile cylinders for versatile locking configurations
  • Mechanical automatic locking mechanism removes the need for manual key turn activation
  • Single spindle operation for intuitive handle functionality
Qty:

Shipping From:

When ordering multiple Keyed Alike locks, only 1 set of keys are provided as all additional locks are made to work from that key.

If ordering 4 or more keyed alike locks you can have them set up as different groups. If Required: Let us know the details in the "Specific Key Requirements" field above.

Each group of locks will then receive keys.

tick Latch & Deadbolt

The GU Secury Automatic TENF is a sophisticated multipoint locking system designed to enhance the security and convenience of entrance doors. Functioning as a Secury A2 opener, this system utilises two automatic deadbolts that are triggered to lock the door securely the moment it is pulled shut. This ensures the door is always held by multiple locking points without the need to lift the handle or use a key.

A distinctive feature of the TENF model is the daytime release function. When combined with a spring-loaded interchangeable central latch release (available separately), the top and bottom latch bolts can be held in the withdrawn position. This allows the central lock to act as a standard daytime latch, facilitating easy access during busy periods without compromising the door's ability to be fully secured later.

This multipoint lock is engineered for long-term reliability and flexibility. It is suitable for new door installations or as a high-specification replacement part. For users looking to integrate smart home or commercial access control, the system can be further upgraded to electric locking by adding a GU Secury Automatic Universal Motor.

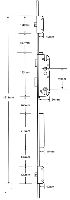
Dimensions Image: GU Secury Automatic TENF Multipoint Door Lock
Part Size (mm)
centres 92
Backset 45
Body Length 2285
Case Height 185
Case Depth 63
Locking Point Dead Bolt 2
Faceplate Width 20

FAQs

The GU Secury Automatic TENF uses two automatic deadbolts that engage instantly as soon as the door is pulled shut. This provides immediate multipoint security without the need to lift the handle or manually turn a key to throw the bolts.

The daytime release function allows you to temporarily disable the automatic locking bolts. When used with a compatible spring-loaded central latch release, the top and bottom bolts are held back, allowing the door to be opened easily for high-traffic use without fully locking every time it shuts.

This lock features a standard 92mm PZ centre and single spindle operation. It is designed for compatibility with most standard lever handles and Euro profile cylinders, making it suitable for both new installations and high-specification replacements.

Yes, the GU Secury Automatic TENF is designed for flexibility. It can be upgraded to an electronic locking system at any time by adding a GU Secury Automatic Universal Motor, allowing for integration with smart home technology or commercial access control systems.